- 3 Recámaras
- 2 Baños
- 1 Medios baños
- 145 m² de construcción
- 147 m² de terreno
- 2 Estacionamientos
Ver Tour Virtual
Detalles
- Tipo: Casa
- ID: EB-VE8645
- Antigüedad: En construcción
- Recámaras: 3 recámaras
- Baños: 2
- Medios baños: 1
- Pisos: 2
Descripción
Un nuevo proyecto de vivienda en venta te espera en el fraccionamiento de mayor éxito que la Riviera Veracruzana tiene para ti. Residencial Lomas de La Rioja.
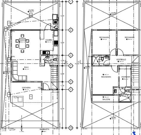
Las características se esta propiedad se conforman de la siguiente manera:
Planta baja:
- Garage para 2 autos.
- Sala.
- Comedor.
- Medio baño para visitas.
- Cocina integral.
- Patio de servicio.
- Jardín trasero.
Planta alta:
- Vestíbulo.
- Dos habitaciones secundarias.
- Un baño completo compartido para secundarias.
- Habitación principal con vestidor y baño completo.
Adicionales:
- Cisterna de 4,000 lts.
- Hidroneumático de 25 lts.
- Tanque de gas estacionario de 100 lts.
*IMPORTANTE: El precio está sujeto a cambios sin previo aviso.
Las características se esta propiedad se conforman de la siguiente manera:
Planta baja:
- Garage para 2 autos.
- Sala.
- Comedor.
- Medio baño para visitas.
- Cocina integral.
- Patio de servicio.
- Jardín trasero.
Planta alta:
- Vestíbulo.
- Dos habitaciones secundarias.
- Un baño completo compartido para secundarias.
- Habitación principal con vestidor y baño completo.
Adicionales:
- Cisterna de 4,000 lts.
- Hidroneumático de 25 lts.
- Tanque de gas estacionario de 100 lts.
*IMPORTANTE: El precio está sujeto a cambios sin previo aviso.
Opciones de financiamiento
- Créditos bancariosMortgage
- INFONAVIT / COFINAVIT
- ISSFAM / Banjercito
Amenidades
- Cisterna
- Facilidad para estacionarse
- Garaje
- Jardín
- Cocina
- Cocina integral
- Dos plantas
- Fraccionamiento privado
- Portero
- Seguridad 24 horas
- Mascotas permitidas
Ubicación
Lomas de la Rioja, Alvarado, Veracruz
Contáctanos










